Дома под ключ во Пскове
Отзывы из Яндекс Карт
4.9
84 отзывов
Дополнительные услуги 88%
2 154 оценок
Комплектации 89%
1 535 оценок
Планировки 90%
2 484 оценок
Проекты 93%
2 231 оценок
С
Лара Щ.04/24/2026 г.
Больше всего боялась, что дом будет как у всех. В «Даче из Бруса» есть типовые проекты, но нам пошли навстречу и немного изменили планировку, перенесли перегородку и добавили окно в санузле. Доплата была небольшой, а ощущение, что дом индивидуальный, бесценно.
С
Эвелина Прокофьева02/04/2026 г.
Муж настоял на компании БрусДома из-за их опыта с двухэтажными домами. Сейчас у нас 10х11 с балконом и двумя санузлами — трещин пока нет, но зиму переживём — увидим.
С
Вениамин Лосев01/26/2026 г.
Сделали мне проект 50 квадратов с верандой и печкой-каменкой. Площадь маленькая, но планировка отличная — всё поместилось. Единственное, когда привезли материал, обнаружил пару кривых досок в обрешетке, заменили на следующий день.
С
Семен07/12/2025 г.
Хочу поблагодарить всю команду за прекрасную работу. Строительство бани из бруса было завершено в срок и без каких-либо проблем. Качество сборки на высоте. Теперь это мое любимое место для релаксации после тяжелой недели.
Отзывы из Google Карт
4.8
51 отзывов
Дополнительные услуги 88%
2 154 оценок
Комплектации 89%
1 535 оценок
Планировки 90%
2 484 оценок
Проекты 93%
2 231 оценок
С
Агния Е.01/26/2025 г.
Выражаю сердечную благодарность компании за наш прекрасный дом, который построили быстро и очень качественно, несмотря на наши достаточно сжатые сроки. Менеджер Юлия всегда оперативно решала все организационные вопросы, а строители работали с настоящей самоотдачей, видно было, что они любят свое дело и болеют за результат, что в наше время большая редкость. Теперь мы счастливые обладатели теплого и экологичного жилья.
Отзывы из 2гис
4.9
41 отзывов
Дополнительные услуги 88%
2 154 оценок
Комплектации 89%
1 535 оценок
Планировки 90%
2 484 оценок
Проекты 93%
2 231 оценок
С
Римма03/06/2026 г.
Мой дом 12х12 с эркером и двумя гаражами строили почти год. То фундамент долго сох, то материал не везли. Зато когда построили — душа радуется. Просторно, светло, печь каминная греет весь дом. Рекомендую набраться терпения.
С
Женя Лазарева05/16/2025 г.
Мечта сбылась – у нас теперь есть прекрасный дом из профилированного бруса от компании "Брус дома", и я не могу нарадоваться! С самого первого дня общения с менеджерами я поняла, что наш проект в надёжных руках, ведь мне подробно ответили на все вопросы и помогли выбрать оптимальный вариант для нашей семьи. Строительство шло строго по графику, а качество сборки просто превосходное – все стены ровные, углы идеальные, и в доме пахнет лесом и уютом.


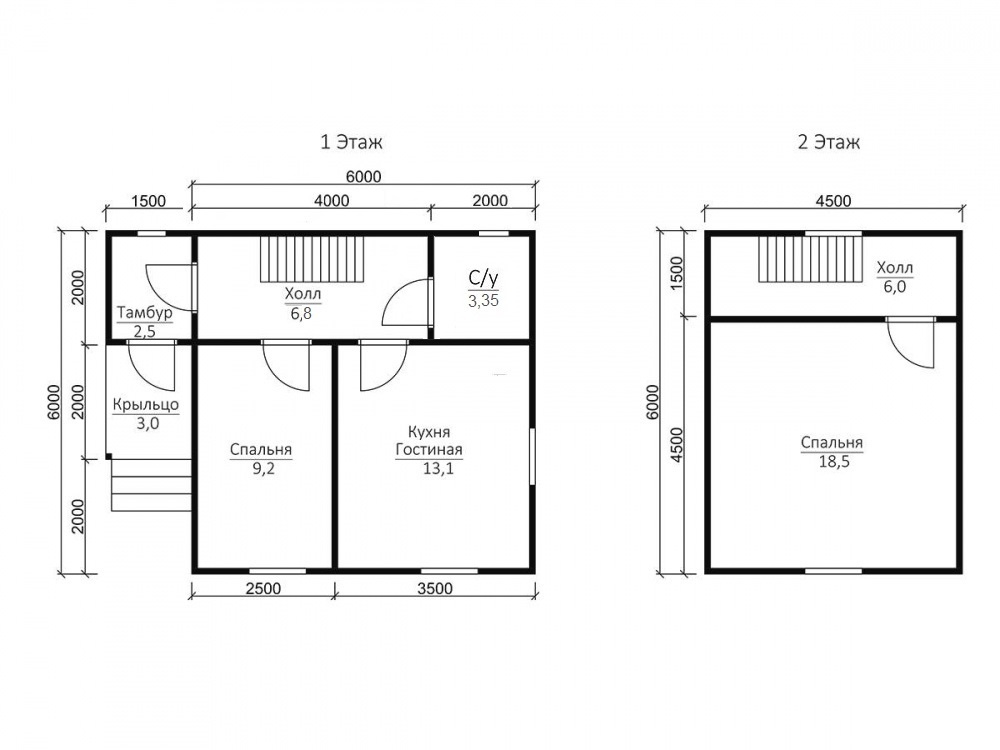
Проект №17 Дом с мансардой 6х7,5

каркас из строганой доски
Создайте свой план для этого проекта
и отправьте его нам на расчет в один клик.
Каркасный дом (150 мм) 6х7,5 Толщина утепления 150 мм 1841800 Заказать
Каркасный дом (200 мм) 6х7,5 Толщина утепления 200 мм 2011800 Заказать

Воспользуйтесь нашим планировщиком, чтобы адаптировать готовые проекты и получить индивидуальную планировку.

С помощью планировщика можно создавать наиболее подходящие планы, чертежи, схемы, эскизы дома с эркером, мансардой, с одной, двумя или тремя спальнями. В результате получится отличный проект, на 100% отвечающий вашим потребностям.

При заказе постройки дома вы сможете подобрать определенный вид крыши: четырехскатная, двускатная и вальмовая. Двухскатная крыша считается самой востребованной у малометражных домов.

Самые популярные размеры домов на текущий момент: мини - до 50 квадратных метров (как правило, одноэтажные); компактные - от 70 до 100 квадратов (обычно 2-этажные); большие дома - от 150м2 и больше.

Предлагаем дуплексы - каркасные постройки с двумя входами, рассчитанные на проживание двух семей. Подобные дома строятся для нескольких хозяев и разделены на две части, для каждой половины - свой отдельный вход.


Наши работы

Перейти в галерею


Комплектация

Площадь застройки: 45 м2
Длина: 6 м
Ширина: 7.5 м
Общая площадь: 60.5 м2
Исполнение Под ключ (с отделкой)
Фундамент Свайно-винтовой или ж/б сваи (рассчитываются отдельно).
Гидроизоляция фундамента Рубероид в два слоя.
Основание (обвязка) Из обрезного бруса 150х150 мм. 150х200 мм. согласно выбранной толщине утепления. Торцевая доска строганая 45х145/45х195+/-5 мм. согласно выбранной толщине утепления. Обработка антисептиком.
Цокольное перекрытие Строганая доска камерной сушки 45х145/45х195+/-5 мм. с шагом 590 мм. Обработка антисептиком.
Пол черновой Обрезная доска камерной сушки 20х100 мм.
Влаго-ветрозащита чернового пола Мембрана Ондутис А100.
Внешние стены Стойки каркаса из строганой доски камерной сушки 45х145/45х195+/-5 мм. с шагом 590 мм. Верхняя двойная и нижняя обвязки из строганой доски камерной сушки 45х145/45х195+/-5 мм. Разгрузочный ригель из строганой доски 45х145+/-5 мм. Укосины из строганой доски 20х95 мм.
Перегородки Стойки каркаса из строганой доски камерной сушки 45х95+/-5 мм. с шагом 590 мм. Верхняя двойная и нижняя обвязки из строганой доски 45х95+/-5 мм. Разгрузочный ригель из строганой доски камерной сушки 45х145+/-5 мм. Укосины из строганой доски камерной сушки 20х95 мм.
Сборка каркаса На гвозди.
Высота от пола до потолка Дом одноэтажный: 2,5 м. Дом с мансардой: 1-ый этаж- 2,5 м.
2-ой этаж (мансарда)- 2,3 м.
Дом в полтора и два этажа:
1-ый этаж 2,5 м.
2-ой этаж 2,4 м. в полутораэтажном доме
2,5 м. в двухэтажном доме.
Внешняя отделка стен Имитация бруса камерной сушки, сорт АВ, толщиной 17 мм. Монтаж через строганый брусок камерной сушки 45х45+/-5 мм. (вентилируемый фасад). Влаго-ветрозащитная мембрана- Ондутис А100.
Внутренняя отделка стен, перегородок Евровагонка камерной сушки, сорт АВ, толщиной 12,5 мм. по строганой рейке 20х40+/-5 мм. либо ГКЛ 12,5 мм.
Отделка потолка Евровагонка камерной сушки, сорт АВ толщиной, 12,5 мм. по строганой рейке 20х40+/-5 мм. либо ГКЛ 12,5 мм.
Пол чистовой Шпунтованная доска камерной сушки толщиной 35-36 мм. сорт АВ. по строганой рейке 20х40+/-5 мм. либо шпунтованная ДСП 16 мм. по разряженной обрешётке из строганой доски камерной сушки 20х95+/-5 мм.
Утепление (пол, потолок) Минеральная вата Knauf 150/200 мм. согласно выбранной толщине утепления.
Утепление стен Плитный утеплитель Rockwool, толщиной 150/200 мм. согласно выбранной толщине утепления.
Звукоизоляция перегородок Плитный утеплитель Rockwool, толщиной 100 мм.
Пароизоляция (стены, перегородки, пол, потолок) Плёнка Ондутис R70. Дополнительная герметизация нахлёстов/примыканий пароизоляционной плёнки клейкой лентой Delta.
Окна Двухкамерные стеклопакеты ПВХ белого цвета, профиль 60 мм. В комплекте: отливы, подоконники, москитные сетки.
Двери Входная- металлическая, утеплённая (Россия). Межкомнатные- филёнчатые.
Наличники на окна и двери Наличник деревянный, строганый, камерной сушки 70-90 мм. с двух сторон.
Лестница (при наличии второго этажа) Деревянная, одно или двухмаршевая. Перила- заводские резные, балясины- заводские точеные, устанавливаются стартовые точёные столбы. Ступени 40х200 мм. Тетива лестницы- 90х140 мм.
Крыша Двускатная, ломаная или вальмовая в соответствии с проектом.
Стропильная система Выполнена из строганой доски камерной сушки 45х145/45х195+/-5 мм. Шаг установки стропил 590 мм.
Обрешётка Выполняется из строганой доски камерной сушки толщиной 20х95+/-5 мм. Шаг крепления обрешетки 350 мм. Контробрешётка выполняется из строганого бруска камерной сушки 45х45+/-5 мм. Крепится по стропилам (вентиляционный зазор).
Подкровельная мембрана Ондутис А100
Кровельное покрытие (на выбор) Металлочерепица 0,45 мм. Цвет на выбор.
Фронтоны (при наличии) Каркас из строганой доски камерной сушки 45х145/45х195+/-5 мм. Обшиваются имитацией бруса камерной сушки, сорт АВ, толщиной 17 мм. Монтаж через строганый брусок камерной сушки 45х45+/-5 мм. (вентилируемый фасад). Влаго-ветрозащитная мембрана- Ондутис А100. Монтаж вентиляционных решёток.
Свесы крыши Ширина 400 мм. Подшиваются вагонкой камерной сушки, сорт АВ.
Терраса/балкон (при наличии) Устанавливаются опорные столбы из строганного бруса камерной сушки 140х140 мм.
Отделка потолка террасы/балкона Евровагонка камерной сушки толщиной 12,5 мм. сорт АВ.
Пол террасы/балкона Шпунтованная доска камерной сушки толщиной 35-36 мм. сорт АВ.
Ограждение террасы/балкона Перила- строганая доска. Балясины- точеные, фигурные. Либо ограждение в скандинавском стиле. Устанавливаются ступени у входа.
Допуск на геометрические параметры Составляет +/- 50 мм по длине с каждой стороны.
Допускается стыковка имитации бруса, вагонки и половой доски По всему периметру стен дома (если ширина и длина дома более 6,0 метров). Вагонки и доски пола в каждой отдельной комнате.
Допуски по имитации бруса, вагонке, доске +/- 5 мм.
В стоимость включена Доставка комплекта материала в радиусе 500 км. от г. Пестова Новгородской области и сборка дома на вашем участке.
Гарантия 5 лет.
Бытовка строительная 2,0х3,0 м. каркасно-щитовая. Стоимость 23000 руб. Остаётся на участке Заказчика.
Туалет 1,0х1,0 м. каркасно-щитовой. Стоимость 12000 руб. Остаётся на участке Заказчика.
Генератор Стоимость аренды на весь срок строительства 15000 руб. ГСМ за счёт Заказчика.

Постройка каркасных домов может выполняться в нескольких видах: под ключ и под усадку, когда дом будет отстаиваться некоторое время.

Зимой профессионалы советуют строить дом в холодную погоду, чтобы каркас не промок, в летнее время - не в дождливую.

Оптимальными для дачи или сада считают дома на винтовых сваях, на нашем сайте можно найти одноэтажные и полуторатажные варианты.

Для ПМЖ (постоянного проживания), можем предложить надежные и теплые двухэтажные и одноэтажные дома на плитных и ленточных фундаментах.

Существует 2 варианта толщины утепления: 200 мм и 150 мм. Каркасные дома с утеплителем 200 мм получаются теплее, но несколько дороже.

Дополнительные услуги


Проект 17 дачного полутораэтажного коттеджа с выполнен в строгом соответствии с широко распространенной технологией каркасного домостроения и занимает площадь 60.5 кв.м. (6х7,5 м.).

Популярность, справедливо заслуженная строением от компании «Дачи из бруса», имеющей более чем 15-ти летний опыт в реализации проектов домов из натуральной древесины, обусловлена уникальными характеристиками:

Дом встречает посетителей уютным холлом и светлыми жилыми помещениями. Продуманная планировка и зонирование помещений позволит комфортно разместиться семье или компании друзей, решивших провести выходные в окружении природы. Оригинальная двускатная выполнена из ондулина красного, коричневого или зеленого цвета.

Компания примет любые предложения по изменению проекта для придания неповторимости и индивидуальности вашей дачи и реализует любой проект в Пскове.


Популярные проекты


Двухэтажные дома из бруса Каркасные дома 4х5 Одноэтажные бани из бруса
хит продаж
Тип: с большой террасой
Общая площадь: 2
1818300
от 1731800
хит продаж
Тип: с большой террасой
Общая площадь: 2
2269800
от 2161800
хит продаж
Тип: с балконом, с маленькой террасой
Общая площадь: 2
3613800
от 3441800
Дома из бруса

Заказать или задать вопрос



Заказать или задать вопрос

Заказать звонок