Дома под ключ во Пскове
Отзывы из Яндекс Карт
4.9
87 отзывов
Дополнительные услуги 88%
2 154 оценок
Комплектации 89%
1 535 оценок
Планировки 90%
2 484 оценок
Проекты 93%
2 231 оценок
С
Макар Добрынин04/26/2026 г.
Обратился для дачного домика 5х6 бюджетного варианта, без изысков. Собрали за неделю, но окна поставили пластиковые - а я просил обычные деревянные. Заметил уже после подписания, ладно, оставил как есть.
С
Архип Калугин03/06/2026 г.
Думал, обманут с материалами, но нет — привезли сертифицированный брус камерной сушки, дом 9х11 с вторым светом стоит красавец, только вот окна на мансарде поставили без отливов, сам потом доделывал.
С
Яков Королёв03/21/2025 г.
Постройка бани — это не просто возведение конструкции, это создание места силы, и ребята из Брус дома понимают это как никто другой. Они не просто собрали сруб, они подобрали материал, проконсультировали по уходу и дали ценные советы. Я получил именно то, что хотел.
Отзывы из Google Карт
4.8
52 отзывов
Дополнительные услуги 88%
2 154 оценок
Комплектации 89%
1 535 оценок
Планировки 90%
2 484 оценок
Проекты 93%
2 231 оценок
С
Виола Я.02/16/2026 г.
Цена в итоге немного вышла за рамки первоначальной сметы, потому что мы добавили панорамное окно в гостиной. Но оно того стоило, вид из него — просто сказка.
С
Ян01/19/2026 г.
Сосед по участку строил баню 6х6 с сауной, я посмотрел и тоже заказал. Мою собрали за 12 дней, всё как у него, но трубу на крыше поставили короче — из-за этого конденсат капал на потолок. Сам наставил, плюс 5000.
С
Алексей04/01/2025 г.
Очень впечатлен профессиональным подходом сотрудников компании на всех этапах сотрудничества. Менеджер Алексей подробно ответил на все мои вопросы и помог выбрать оптимальный проект каркасного дома, а строительная бригада воплотила его в жизнь с невероятной аккуратностью и вниманием к деталям. Дом получился именно таким, о каком я всегда мечтал.
Отзывы из 2гис
4.9
41 отзывов
Дополнительные услуги 88%
2 154 оценок
Комплектации 89%
1 535 оценок
Планировки 90%
2 484 оценок
Проекты 93%
2 231 оценок
С
Валя Ю.07/06/2025 г.
Каркасная технология оказалась очень тёплой и практичной, а главное — дом построили быстро, и мы уже справляем новоселье.


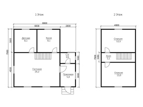
Проект №24 Дом с мансардой 7,5х8

брус камерной сушки
Создайте свой план для этого проекта
и отправьте его нам на расчет в один клик.
Под ключ (с отделкой) 7,5х8 Профилированный 140х140 мм 1991800 Заказать
Под ключ (с отделкой) 7,5х8 Профилированный 190х140 мм 2261800 Заказать
Под усадку (без отделки) 7,5х8 Cруб дома 140х140 мм 1271800 Заказать
Под усадку (без отделки) 7,5х8 Cруб дома 190х140 мм 1461800 Заказать


Комплектация

Площадь застройки: 60 м2
Длина: 7 м
Ширина: 8 м
Общая площадь: 70.43 м2
Под ключ (с отделкой) Под усадку (без отделки)
Фундамент Свайно-винтовой или ж/б сваи (рассчитываются отдельно).
Гидроизоляция фундамента Рубероид в два слоя.
Основание (обвязка) Из обрезного бруса (100х150 мм. 150х150 мм. 150х200 мм. согласно выбранному сечению бруса). Обработка антисептиком.
Количество рядов основания 2 2
Цокольное перекрытие Обрезной брус камерной сушки 100х150/50х200 мм. с шагом 600 мм. Обработка антисептиком. Обрезной брус естественной влажности 100х150/50х200 мм. с шагом 600 мм. Обработка антисептиком.
Пол черновой Обрезная доска камерной сушки 20х100 мм. Обрезная доска естественной влажности 20х100 мм.
Внешние стены Профилированный брус камерной сушки, сечением 90х140/140х140/190х140 мм. по выбранной комплектации. Два вида профиля: 
1. С двух сторон, прямой со снятой фаской. 2. Снаружи под «блок- хаус», внутри прямой.
Высота сруба: Сруб одноэтажный- 18 венцов
Сруб с мансардой- 18 венцов
Сруб в 1,5 этажа- 18 венцов, далее каркас с внешней отделкой имитацией бруса.
Сруб в 2 этажа- 37 венцов
Профилированный брус естественной влажности, сечением 90х140/140х140/190х140 мм. по выбранной комплектации. Два вида профиля: 
1. С двух сторон, прямой со снятой фаской. 2. Снаружи под «блок- хаус», внутри прямой.
Высота сруба: Сруб одноэтажный- 18 венцов
Сруб с мансардой- 18 венцов
Сруб в 1,5 этажа- 18 венцов, далее каркас с внешней отделкой имитацией бруса.
Сруб в 2 этажа- 37 венцов
Межвенцовый утеплитель Джут (льноджутовое полотно). Джут (льноджутовое полотно).
Перегородки 1-го этажа Профилированный брус камерной сушки, сечением 90х140 мм. Профилированный брус естественной влажности, сечением 90х140 мм.
Перегородки 2-го этажа Каркасные: доска камерной сушки 40х100 мм, обшитые евровагонкой хвойных пород, камерной сушки, толщиной 12,5 мм. сорт «АВ» (дома с мансардой и в 1,5 этажа). Брусовые: профилированный брус камерной сушки, сечением 90х140 мм. (дома двухэтажные). Каркасные: доска естественной влажности 40х100 мм. (дома с мансардой и в 1,5 этажа). Брусовые: профилированный брус естественной влажности, сечением 90х140 мм. (дома двухэтажные).
Сборка сруба Берёзовый нагель. Берёзовый нагель.
Соединение углов сруба «Тёплый угол» (коренной шип). «Тёплый угол» (коренной шип).
Высота от пола до потолка Сруб одноэтажный: 2,4 м. (18 венцов) Сруб с мансардой: 1-ый этаж- 2,4 м. (18 венцов)
2-ой этаж (мансарда)- 2,3 м.
Сруб в полтора и два этажа:
1-ый этаж 2,4 м ±4 см. (18 венцов)
2-ой этаж 2,4 м ±4 см. каркасные аттиковые стены (боковые) высотой 1,5 м. в полутораэтажном доме
2,4 м ±4 см (поднят брусом на 18 венцов) в двухэтажном доме.
Сруб одноэтажный: 2,5 м. (18 венцов) Сруб с мансардой: 1-ый этаж- 2,5 м. (18 венцов)
2-ой этаж (мансарда)- 2,4 м.
Сруб в полтора и два этажа:
1-ый этаж 2,5 м ±4 см. (18 венцов)
2-ой этаж 2,5 м ±4 см. каркасные аттиковые стены (боковые) высотой 1,5 м. в полутораэтажном доме
2,5 м ±4 см (поднят брусом на 18 венцов) в двухэтажном доме.
Утепление (пол, потолок, мансарда) Минеральная вата Knauf 150 мм. Отсутствует.
Пароизоляция (пол, потолок, мансарда) Ондутис R70. Отсутствует.
Пол чистовой Шпунтованная доска камерной сушки толщиной 36 мм. сорт АВ. по рейке 20х40 мм. либо шпунтованная ДСП 16 мм. по разряженной обрешётке из обрезной доски камерной сушки 20х100 мм. Отсутствует.
Потолки Евровагонка камерной сушки толщиной 12,5 мм. сорт АВ. Отсутствует.
Окна Деревянные, двойного остекления. Отсутствуют.
Двери Входная- металлическая, утеплённая (Россия). Межкомнатные- филёнчатые. Отсутствуют.
Наличники на окна и двери Наличник деревянный, строганый, камерной сушки 70-90 мм. Отсутствует.
Шиповка оконных и дверных проёмов (ройки) Да. Отсутствует.
Лестница (при наличии второго этажа) Деревянная, одно или двухмаршевая. Перила- заводские резные, балясины- заводские точеные, устанавливаются стартовые точёные столбы. Ступени 40х200 мм. Тетива лестницы- 90х140 мм. Отсутствует.
Крыша Двускатная, ломаная или вальмовая в соответствии с проектом. Двускатная, ломаная или вальмовая в соответствии с проектом.
Стропильная система Выполнена из обрезной доски камерной сушки 40х150 мм. Шаг установки стропильных ног 600 мм. Выполнена из обрезной доски естественной влажности 40х150 мм. Шаг установки стропильных ног 600 мм.
Обрешётка Выполняется из обрезной доски камерной сушки толщиной 20-22 мм. Шаг крепления обрешетки 300 мм. Контробрешётка выполняется из бруска камерной сушки 40х50 мм. Крепится по стропильным ногам (вентиляционный зазор). Выполняется из обрезной доски естественной влажности толщиной 20-22 мм. Шаг крепления обрешетки 300 мм. Контробрешётка выполняется из бруска естественной влажности 40х50 мм. Крепится по стропильным ногам (вентиляционный зазор).
Подкровельная мембрана Ондутис А100 Ондутис А100
Кровельное покрытие (на выбор) Ондулин, Черепица Ондулин. Ондулин, Черепица Ондулин.
Фронтоны (при наличии) Каркас из обрезной доски камерной сушки 40х150 мм. Обшиваются вагонкой камерной сушки толщиной 16 мм. сорт АВ по контррейке 20х40 мм. (вентиляционный зазор). Влаго-ветрозащита Ондутис А100. Монтаж вентиляционных решёток. Каркас из обрезной доски естественной влажности 40х150 мм. Обшиваются вагонкой камерной сушки толщиной 16 мм. сорт АВ по контррейке 20х40 мм. (вентиляционный зазор). Влаго-ветрозащита Ондутис А100. Монтаж вентиляционных решёток.
Свесы крыши Ширина 400 мм. Подшиваются вагонкой камерной сушки, сорт АВ. Ширина 400 мм. Подшиваются вагонкой камерной сушки, сорт АВ.
Терраса/балкон (при наличии) Устанавливаются опорные столбы из строганного бруса камерной сушки 140х140 мм. с компенсационными болтами под усадку. Устанавливаются опорные столбы из строганного бруса естественной влажности 140х140 мм. с компенсационными болтами под усадку.
Отделка потолка террасы/балкона Евровагонка камерной сушки толщиной 12,5 мм. сорт АВ. Отсутствует.
Пол террасы/балкона Шпунтованная доска камерной сушки толщиной 36 мм. сорт АВ. Отсутствует.
Ограждение террасы/балкона Перила- строганая доска. Балясины- точеные, фигурные. Либо ограждение в скандинавском стиле. Устанавливаются ступени у входа. Отсутствует.
Допуск на геометрические параметры сруба Составляет +/- 50 мм по длине с каждой стороны. Составляет +/- 50 мм по длине с каждой стороны.
Допускается стыковка бруса, вагонки и половой доски По всему периметру стен дома (если ширина и длина дома более 6,0 метров). Вагонки и доски пола в каждой отдельной комнате. По всему периметру стен дома (если ширина и длина дома более 6,0 метров).
Допуски по брусу, доске +/- 5 мм. +/- 5 мм.
В стоимость включена Доставка комплекта материала в радиусе 500 км. от г. Пестова Новгородской области и сборка дома на вашем участке. Доставка комплекта материала в радиусе 500 км. от г. Пестова Новгородской области и сборка дома на вашем участке.
Гарантия 5 лет. 2 года.
Бытовка строительная 2,0х3,0 м. каркасно-щитовая. Стоимость 23000 руб. Остаётся на участке Заказчика. Стоимость 23000 руб. Остаётся на участке Заказчика.
Туалет 1,0х1,0 м. каркасно-щитовой. Стоимость 12000 руб. Остаётся на участке Заказчика. Стоимость 12000 руб. Остаётся на участке Заказчика.
Генератор Стоимость аренды на весь срок строительства 10000 руб. ГСМ за счёт Заказчика. Стоимость аренды на весь срок строительства 10000 руб. ГСМ за счёт Заказчика.

Постройка дома производится в нескольких вариантах: под усадку, когда сруб будет отстаиваться в течение некоторого времени и сразу под ключ.

Зимой специалисты рекомендуют строить дома из зимнего леса, летом - из сухого бруса (дерева камерной сушки).

Оптимальными для сада или дачи считают домики на винтовых сваях, у нас представлены одноэтажные и полуторатажные дома.

Если вы планируете проживать постоянно, предлагаем надежные и теплые двухэтажные и одноэтажные дома на ленточном и плитном фундаменте.

Существует несколько размеров профбруса: 190х140 мм и 140х140 мм. Дома из вертикального бруса строятся из бруса 140х190 мм.

Дополнительные услуги


Представленный проект полутораэтажного дома с 24 отлично впишется в загородный ландшафт и позволит владельцам проводить время в окружении природы, не покидая территорию жилища.

Дом выполняется из натурального профилированного бруса сечением 90х140 мм или 140х140 мм, что обеспечит не только прекрасную теплоизоляцию, но и создаст особый микроклимат гармонии и умиротворения. При строительстве стен дополнительно используется утеплитель – джутовое льнополотно.

Общая площадь данной модели 70.43 кв.м., размер – 7,5х8 м.. В каждом помещении предполагается установка двойных окон размером 1х1,2м и межкомнатных филенчатых дверей. Полы дома – двойные с прослойкой утеплителя (URSA/ISOVER) и гидроизолятора (ондутис R70). Конструкцию завершает двускатная крыша, выполненная из ондулина (возможен выбор цвета).

Выбрав данный дом, Вы можете осуществить заказ его строительства под ключ или усадку по приемлемым ценам в Пскове. Мы, со своей стороны, обеспечим выполнение работ на высоком профессиональном уровне с соблюдением сроков, прописанных договором.


Популярные проекты

хит продаж брус камерной сушки
Тип: с балконом, с маленькой террасой
Общая площадь: 442
925800
от 881800
хит продаж брус камерной сушки
Тип: с балконом, с маленькой террасой
Общая площадь: 402
936300
от 891800
хит продаж брус камерной сушки
Тип:
Общая площадь: 1002
1461300
от 1391800

Заказать или задать вопрос



Заказать или задать вопрос

Заказать звонок