Дома под ключ во Пскове
Отзывы из Яндекс Карт
4.9
78 отзывов
Дополнительные услуги 88%
2 154 оценок
Комплектации 89%
1 535 оценок
Планировки 90%
2 484 оценок
Проекты 93%
2 231 оценок
С
Васса04/15/2026 г.
Муж настоял на доме с гаражом на две машины 13х13, я была против — зачем нам столько места. Теперь сама радуюсь, потому что в гараже сделали мастерскую. Постройка заняла четыре месяца, задержались из-за того, что перепутали этажность — заложили второй этаж не в той стороне, пришлось переделывать.
С
Михаил Суворов01/29/2026 г.
Только в этом году сдал двухэтажный дом 8х10 с сауной и навесом для машины. БрусДома строили под ключ, включая разводку электрики и отопления. При приёмке нашел, что розетки на кухне установлены на разной высоте — переделали за день без вопросов.
С
Валера Я.06/08/2025 г.
Спасибо Брус дома за мой новый дом! Построили из профилированного бруса, работали слаженно, без ошибок. Дом тёплый, уютный, пахнет лесом. Рекомендую!
Отзывы из Google Карт
4.8
47 отзывов
Дополнительные услуги 88%
2 154 оценок
Комплектации 89%
1 535 оценок
Планировки 90%
2 484 оценок
Проекты 93%
2 231 оценок
С
Федя Кириллов05/14/2026 г.
Заказал у БрусДома проект одноэтажного дома 6х6 с панорамным окном и котельной — для небольших загородных поездок. Сделали за два с половиной месяца, качество сборки хорошее, но окно заказали с браком — стеклопакет запотевал, заменили по гарантии.
С
Борис Меркулов02/23/2026 г.
Итог: построили дом 6х11 с эркером и балконом. Площадь 66 квадратов, мне одному хватает. Бригада работала дружно, оставляли чистоту на участке. Из минусов — не привезли вовремя черепицу, ждал неделю.
С
Гриша Завьялов03/13/2025 г.
Я по достоинству оценил профессиональный подход на всех этапах от консультации и выбора проекта до финальной отделки — чувствуется что компания работает давно и отлаженные процессы позволяют им держать высокую планку.
Отзывы из 2гис
4.9
41 отзывов
Дополнительные услуги 88%
2 154 оценок
Комплектации 89%
1 535 оценок
Планировки 90%
2 484 оценок
Проекты 93%
2 231 оценок
С
Элина Авдеева03/31/2026 г.
Когда подписывали договор, муж все внимательно читал, а я переживала за скрытые платежи. Но итоговая сумма сошлась почти один в один, только чуть дороже вышла проводка, потому что я добавила больше розеток.
С
Кай М.04/28/2025 г.
Это был мой первый опыт строительства, поэтому переживал сильно. Но команда Брус дома сразу вселила уверенность — менеджер Александр подробнейшим образом ответил на все мои сотни вопросов, а прораб Виктор на объекте ежедневно докладывал о ходе работ. Построили каркасный дом быстро и качественно, уложились в обещанные сроки и смету. Теперь у меня прекрасный загородный дом, спасибо!


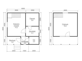
Проект №4 Каркасная баня 6х6

каркас из строганой доски
Создайте свой план для этого проекта
и отправьте его нам на расчет в один клик.
Каркасный дом (150 мм) 6х6 Толщина утепления 150 мм 1691800 Заказать
Каркасный дом (200 мм) 6х6 Толщина утепления 200 мм 1831800 Заказать

Пользуйтесь нашим планировщиком для того, чтобы подстроить уже готовый проект и получить индивидуальную планировку.

При помощи планировщика можно сделать схемы, планы, эскизы, чертежи бани с мансардой, эркером, с требуемым числом комнат. В конечном итоге вы получите проект с современной планировкой, 100% отвечающий вашим условиям.

Вы сможете выбрать тип крыши: четырехскатная, двускатная и вальмовая. Двухскатную крышу считают самой популярной у малометражных бань.

Самые популярные на данный момент размеры бань: мини - до 36м2 (как правило, 1 этажные); компактные - от 36 м2 до 70 квадратов (обычно 2-этажные); большие - от 70 кв. М и больше.


Наши работы

Перейти в галерею


Комплектация

Площадь застройки: 36 м2
Длина: 6 м
Ширина: 6 м
Общая площадь: 51 м2
Исполнение Под ключ (с отделкой)
Фундамент Свайно-винтовой или ж/б сваи (рассчитываются отдельно).
Гидроизоляция фундамента Рубероид в два слоя.
Основание (обвязка) Из обрезного бруса 150х150 мм. 150х200 мм. согласно выбранной толщине утепления. Торцевая строганая доска камерной сушки 45х145/45х195+/-5 мм. Обработка антисептиком.
Цокольное перекрытие Строганая доска камерной сушки 45х145/45х195+/-5 мм. с шагом 590 мм. Обработка антисептиком.
Пол черновой Обрезная доска камерной сушки 20х100 мм.
Влаго-ветрозащита чернового пола Мембрана Ондутис А100.
Внешние стены Стойки каркаса из строганой доски камерной сушки 45х145/45х195+/-5 мм. с шагом 590 мм. Верхняя двойная и нижняя обвязки из строганой доски камерной сушки 45х145/45х195+/-5 мм. Разгрузочный ригель из строганой доски 45х145+/-5 мм. Укосины из строганой доски 20х95 мм.
Перегородки Стойки каркаса из строганой доски камерной сушки 45х95+/-5 мм. с шагом 590 мм. Верхняя двойная и нижняя обвязки из строганой доски 45х95+/-5 мм. Разгрузочный ригель из строганой доски камерной сушки 45х145+/-5 мм. Укосины из строганой доски камерной сушки 20х95 мм.
Сборка каркаса На гвозди.
Высота от пола до потолка Баня одноэтажная: 2,5 м. Баня с мансардой: 1-ый этаж- 2,5 м.
2-ой этаж (мансарда)- 2,3 м.
Баня в полтора и два этажа:
1-ый этаж 2,5 м.
2-ой этаж 2,4 м. в полутораэтажной бане.
2,5 м. в двухэтажной бане.
Внешняя отделка стен Имитация бруса камерной сушки, сорт АВ, толщиной 17 мм. Монтаж через строганый брусок камерной сушки 45х45+/-5 мм. (вентилируемый фасад). Влаго-ветрозащитная мембрана- Ондутис А100.
Внутренняя отделка стен, перегородок Евровагонка камерной сушки, сорт АВ, толщиной 12,5 мм. по строганой рейке 20х40+/-5 мм. либо ГКЛ 12,5 мм.
Отделка потолка Евровагонка камерной сушки, сорт АВ, толщиной 12,5 мм. по строганой рейке 20х40+/-5 мм. либо ГКЛ 12,5 мм.
Пол чистовой Шпунтованная доска камерной сушки толщиной 35-36 мм. сорт АВ. по строганой рейке 20х40+/-5 мм. либо шпунтованная ДСП 16 мм. по разряженной обрешётке из строганой доски камерной сушки 20х95+/-5 мм.
Утепление (пол, потолок) Минеральная вата Knauf 150/200 мм. согласно выбранной толщине утепления.
Утепление стен Плитный утеплитель Rockwool, толщиной 150/200 мм. согласно выбранной толщине утепления.
Звукоизоляция перегородок Плитный утеплитель Rockwool, толщиной 100 мм.
Пароизоляция (стены, перегородки, пол, потолок) Плёнка Ондутис R70. Дополнительная герметизация нахлёстов/примыканий пароизоляционной плёнки клейкой лентой Delta.
Отделка парной Отделка осиновой вагонкой камерной сушки, сорт АВ по фольге, через строганую рейку 20х40+/-5 мм. (вентиляционный зазор). Установка пологов из осины.
Окна Двухкамерные стеклопакеты ПВХ белого цвета, профиль 60 мм. В комплекте: отливы, подоконники, москитные сетки.
Двери Входная- металлическая, утеплённая (Россия). Межкомнатные- филёнчатые. В душевую/парную- клиновые (банные).
Наличники на окна и двери Наличник деревянный, строганый, камерной сушки 70-90 мм. с двух сторон.
Лестница (при наличии второго этажа) Деревянная, одно или двухмаршевая. Перила- заводские резные, балясины- заводские точеные, устанавливаются стартовые точёные столбы. Ступени 40х200 мм. Тетива лестницы- 90х140 мм.
Крыша Двускатная, ломаная или вальмовая в соответствии с проектом.
Стропильная система Выполнена из строганой доски камерной сушки 45х145/45х195+/-5 мм. Шаг установки стропил 590 мм.
Обрешётка Выполняется из строганой доски камерной сушки толщиной 20х95+/-5 мм. Шаг крепления обрешетки 350 мм. Контробрешётка выполняется из строганого бруска камерной сушки 45х45+/-5 мм. Крепится по стропилам (вентиляционный зазор).
Подкровельная мембрана Ондутис А100
Кровельное покрытие (на выбор) Металлочерепица 0,45 мм. Цвет на выбор.
Фронтоны (при наличии) Каркас из строганой доски камерной сушки 45х145/45х195+/-5 мм. Обшиваются имитацией бруса камерной сушки, сорт АВ, толщиной 17 мм. Монтаж через строганый брусок камерной сушки 45х45+/-5 мм. (вентилируемый фасад). Влаго-ветрозащитная мембрана- Ондутис А100. Монтаж вентиляционных решёток.
Свесы крыши Ширина 400 мм. Подшиваются вагонкой камерной сушки, сорт АВ.
Терраса/балкон (при наличии) Устанавливаются опорные столбы из строганного бруса камерной сушки 140х140 мм.
Отделка потолка террасы/балкона Евровагонка камерной сушки толщиной 12,5 мм. сорт АВ.
Пол террасы/балкона Шпунтованная доска камерной сушки толщиной 35-36 мм. сорт АВ.
Ограждение террасы/балкона Перила- строганая доска. Балясины- точеные, фигурные. Либо ограждение в скандинавском стиле. Устанавливаются ступени у входа.
Допуск на геометрические параметры Составляет +/- 50 мм по длине с каждой стороны.
Допускается стыковка имитации бруса, вагонки и половой доски По всему периметру стен бани (если ширина и длина бани более 6,0 метров). Вагонки и доски пола в каждой отдельной комнате.
Допуски по имитации бруса, вагонке, доске +/- 5 мм.
В стоимость включена Доставка комплекта материала в радиусе 500 км. от г. Пестова Новгородской области и сборка дома на вашем участке.
Гарантия 5 лет.
Печь По запросу.
Бытовка строительная 2,0х3,0 м. каркасно-щитовая. Стоимость 23000 руб. Остаётся на участке Заказчика.
Туалет 1,0х1,0 м. каркасно-щитовой. Стоимость 12000 руб. Остаётся на участке Заказчика.
Генератор Стоимость аренды на весь срок строительства 15000 руб. ГСМ за счёт Заказчика.

Сооружение каркасной бани производится в нескольких вариантах: сразу под ключ и под усадку, когда сруб будет отстаиваться на протяжении определенного времени.

В холодное время года эффективнее строить баню в холодную погоду, чтобы каркас не промок, в теплое время года - не в дождливую.

Оптимальными для дачи или сада считаются экономичные баньки на винтовых сваях, на нашем сайте представлены одноэтажные и полуторатажные бани.

Мы предлагаем 2 вида утепления: 150 мм и 200 мм. Каркасные бани с толщиной стен 200 миллиметров получаются теплее, но несколько дороже.

Дополнительные услуги



Популярные проекты


Маленькие каркасные дома Бани из бруса с верандой Бани из бруса 5х8
Дома из бруса

Заказать или задать вопрос



Заказать или задать вопрос

Заказать звонок