Дома под ключ во Пскове
Отзывы из Яндекс Карт
4.9
110 отзывов
Дополнительные услуги 88%
2 154 оценок
Комплектации 89%
1 535 оценок
Планировки 90%
2 484 оценок
Проекты 93%
2 231 оценок
С
Катя04/19/2026 г.
Большой дом 150 м2 с бассейном и двумя гаражами — это их премиум, строился почти год. Были накладки с вентиляцией, пришлось переделывать воздуховоды за их счет, но в целом домом горжусь.
С
Катерина02/18/2025 г.
Мы остались очень довольны сотрудничеством с компанией "Брус дома" — нам построили дом мечты, и теперь каждое утро начинается с удовольствия от проживания в таком прекрасном месте.
Отзывы из Google Карт
4.8
66 отзывов
Дополнительные услуги 88%
2 154 оценок
Комплектации 89%
1 535 оценок
Планировки 90%
2 484 оценок
Проекты 93%
2 231 оценок
С
Костя Ермолаев06/10/2025 г.
Мне построили баню из бруса, и я каждый раз получаю огромное удовольствие от парения, потому что древесина дышит и создает неповторимую атмосферу, а сама конструкция собрана идеально ровно и без щелей.
Отзывы из 2гис
4.9
41 отзывов
Дополнительные услуги 88%
2 154 оценок
Комплектации 89%
1 535 оценок
Планировки 90%
2 484 оценок
Проекты 93%
2 231 оценок
С
Вова Громов03/07/2026 г.
На второй день стройки заметил что один из рабочих не очень аккуратно обращается с инструментом. Сказал бригадиру — больше такого не было, видимо, сделал замечание.
С
Аза Ш.02/10/2026 г.
Самое сложное было выбрать из кучи размеров. Остановились на 7,5х10 с цоколем и баней. Процесс стройки был как американские горки: то радость, то слёзы, когда бригада не выходила на связь. Но директор лично приезжал разбираться, всё наладилось.
С
Вадим У.01/12/2026 г.
Решился на дом 9х14 с цоколем, гаражом и баней, для большой семьи. Строили долго, почти 8 месяцев, зато всё по уму. Один косяк — в гараже забыли сделать смотровую яму, хотя в договоре была. Вернули часть денег.
С
Ульяна Рогова04/09/2025 г.
Сомневалась между каркасной технологией и брусом, но консультанты компании так подробно и понятно расписали все плюсы и минусы, что выбор сделался очевидным, и я ни капли не жалею о своем решении в пользу уютного брусового дома.


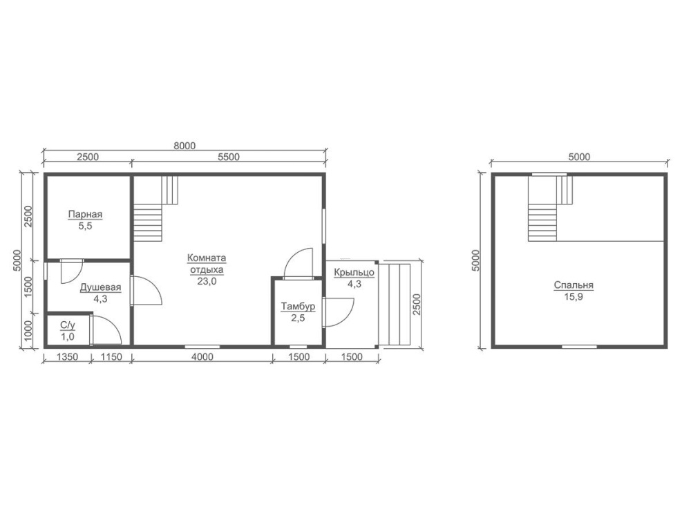
Проект №12 Каркасная баня 5х8

каркас из строганой доски
Создайте свой план для этого проекта
и отправьте его нам на расчет в один клик.
Каркасный дом (150 мм) 5х8 Толщина утепления 150 мм 1961800 Заказать
Каркасный дом (200 мм) 5х8 Толщина утепления 200 мм 2141800 Заказать

Пользуйтесь нашим планировщиком для того, чтобы подстроить уже готовый проект и получить индивидуальную планировку.

При помощи планировщика можно сделать схемы, планы, эскизы, чертежи бани с мансардой, эркером, с требуемым числом комнат. В конечном итоге вы получите проект с современной планировкой, 100% отвечающий вашим условиям.

Вы сможете выбрать тип крыши: четырехскатная, двускатная и вальмовая. Двухскатную крышу считают самой популярной у малометражных бань.

Самые популярные на данный момент размеры бань: мини - до 36м2 (как правило, 1 этажные); компактные - от 36 м2 до 70 квадратов (обычно 2-этажные); большие - от 70 кв. М и больше.


Наши работы

Перейти в галерею


Комплектация

Площадь застройки: 43 м2
Длина: 5 м
Ширина: 8 м
Общая площадь: 56 м2
Исполнение Под ключ (с отделкой)
Фундамент Свайно-винтовой или ж/б сваи (рассчитываются отдельно).
Гидроизоляция фундамента Рубероид в два слоя.
Основание (обвязка) Из обрезного бруса 150х150 мм. 150х200 мм. согласно выбранной толщине утепления. Торцевая строганая доска камерной сушки 45х145/45х195+/-5 мм. Обработка антисептиком.
Цокольное перекрытие Строганая доска камерной сушки 45х145/45х195+/-5 мм. с шагом 590 мм. Обработка антисептиком.
Пол черновой Обрезная доска камерной сушки 20х100 мм.
Влаго-ветрозащита чернового пола Мембрана Ондутис А100.
Внешние стены Стойки каркаса из строганой доски камерной сушки 45х145/45х195+/-5 мм. с шагом 590 мм. Верхняя двойная и нижняя обвязки из строганой доски камерной сушки 45х145/45х195+/-5 мм. Разгрузочный ригель из строганой доски 45х145+/-5 мм. Укосины из строганой доски 20х95 мм.
Перегородки Стойки каркаса из строганой доски камерной сушки 45х95+/-5 мм. с шагом 590 мм. Верхняя двойная и нижняя обвязки из строганой доски 45х95+/-5 мм. Разгрузочный ригель из строганой доски камерной сушки 45х145+/-5 мм. Укосины из строганой доски камерной сушки 20х95 мм.
Сборка каркаса На гвозди.
Высота от пола до потолка Баня одноэтажная: 2,5 м. Баня с мансардой: 1-ый этаж- 2,5 м.
2-ой этаж (мансарда)- 2,3 м.
Баня в полтора и два этажа:
1-ый этаж 2,5 м.
2-ой этаж 2,4 м. в полутораэтажной бане.
2,5 м. в двухэтажной бане.
Внешняя отделка стен Имитация бруса камерной сушки, сорт АВ, толщиной 17 мм. Монтаж через строганый брусок камерной сушки 45х45+/-5 мм. (вентилируемый фасад). Влаго-ветрозащитная мембрана- Ондутис А100.
Внутренняя отделка стен, перегородок Евровагонка камерной сушки, сорт АВ, толщиной 12,5 мм. по строганой рейке 20х40+/-5 мм. либо ГКЛ 12,5 мм.
Отделка потолка Евровагонка камерной сушки, сорт АВ, толщиной 12,5 мм. по строганой рейке 20х40+/-5 мм. либо ГКЛ 12,5 мм.
Пол чистовой Шпунтованная доска камерной сушки толщиной 35-36 мм. сорт АВ. по строганой рейке 20х40+/-5 мм. либо шпунтованная ДСП 16 мм. по разряженной обрешётке из строганой доски камерной сушки 20х95+/-5 мм.
Утепление (пол, потолок) Минеральная вата Knauf 150/200 мм. согласно выбранной толщине утепления.
Утепление стен Плитный утеплитель Rockwool, толщиной 150/200 мм. согласно выбранной толщине утепления.
Звукоизоляция перегородок Плитный утеплитель Rockwool, толщиной 100 мм.
Пароизоляция (стены, перегородки, пол, потолок) Плёнка Ондутис R70. Дополнительная герметизация нахлёстов/примыканий пароизоляционной плёнки клейкой лентой Delta.
Отделка парной Отделка осиновой вагонкой камерной сушки, сорт АВ по фольге, через строганую рейку 20х40+/-5 мм. (вентиляционный зазор). Установка пологов из осины.
Окна Двухкамерные стеклопакеты ПВХ белого цвета, профиль 60 мм. В комплекте: отливы, подоконники, москитные сетки.
Двери Входная- металлическая, утеплённая (Россия). Межкомнатные- филёнчатые. В душевую/парную- клиновые (банные).
Наличники на окна и двери Наличник деревянный, строганый, камерной сушки 70-90 мм. с двух сторон.
Лестница (при наличии второго этажа) Деревянная, одно или двухмаршевая. Перила- заводские резные, балясины- заводские точеные, устанавливаются стартовые точёные столбы. Ступени 40х200 мм. Тетива лестницы- 90х140 мм.
Крыша Двускатная, ломаная или вальмовая в соответствии с проектом.
Стропильная система Выполнена из строганой доски камерной сушки 45х145/45х195+/-5 мм. Шаг установки стропил 590 мм.
Обрешётка Выполняется из строганой доски камерной сушки толщиной 20х95+/-5 мм. Шаг крепления обрешетки 350 мм. Контробрешётка выполняется из строганого бруска камерной сушки 45х45+/-5 мм. Крепится по стропилам (вентиляционный зазор).
Подкровельная мембрана Ондутис А100
Кровельное покрытие (на выбор) Металлочерепица 0,45 мм. Цвет на выбор.
Фронтоны (при наличии) Каркас из строганой доски камерной сушки 45х145/45х195+/-5 мм. Обшиваются имитацией бруса камерной сушки, сорт АВ, толщиной 17 мм. Монтаж через строганый брусок камерной сушки 45х45+/-5 мм. (вентилируемый фасад). Влаго-ветрозащитная мембрана- Ондутис А100. Монтаж вентиляционных решёток.
Свесы крыши Ширина 400 мм. Подшиваются вагонкой камерной сушки, сорт АВ.
Терраса/балкон (при наличии) Устанавливаются опорные столбы из строганного бруса камерной сушки 140х140 мм.
Отделка потолка террасы/балкона Евровагонка камерной сушки толщиной 12,5 мм. сорт АВ.
Пол террасы/балкона Шпунтованная доска камерной сушки толщиной 35-36 мм. сорт АВ.
Ограждение террасы/балкона Перила- строганая доска. Балясины- точеные, фигурные. Либо ограждение в скандинавском стиле. Устанавливаются ступени у входа.
Допуск на геометрические параметры Составляет +/- 50 мм по длине с каждой стороны.
Допускается стыковка имитации бруса, вагонки и половой доски По всему периметру стен бани (если ширина и длина бани более 6,0 метров). Вагонки и доски пола в каждой отдельной комнате.
Допуски по имитации бруса, вагонке, доске +/- 5 мм.
В стоимость включена Доставка комплекта материала в радиусе 500 км. от г. Пестова Новгородской области и сборка дома на вашем участке.
Гарантия 5 лет.
Печь По запросу.
Бытовка строительная 2,0х3,0 м. каркасно-щитовая. Стоимость 23000 руб. Остаётся на участке Заказчика.
Туалет 1,0х1,0 м. каркасно-щитовой. Стоимость 12000 руб. Остаётся на участке Заказчика.
Генератор Стоимость аренды на весь срок строительства 15000 руб. ГСМ за счёт Заказчика.

Сооружение каркасной бани производится в нескольких вариантах: сразу под ключ и под усадку, когда сруб будет отстаиваться на протяжении определенного времени.

В холодное время года эффективнее строить баню в холодную погоду, чтобы каркас не промок, в теплое время года - не в дождливую.

Оптимальными для дачи или сада считаются экономичные баньки на винтовых сваях, на нашем сайте представлены одноэтажные и полуторатажные бани.

Мы предлагаем 2 вида утепления: 150 мм и 200 мм. Каркасные бани с толщиной стен 200 миллиметров получаются теплее, но несколько дороже.

Дополнительные услуги



Популярные проекты


Двухэтажные дома из бруса Каркасные дома 6х4 Каркасные дома 8х8
Дома из бруса

Заказать или задать вопрос



Заказать или задать вопрос

Заказать звонок