Дома под ключ во Пскове
Отзывы из Яндекс Карт
4.9
109 отзывов
Дополнительные услуги 88%
2 154 оценок
Комплектации 89%
1 535 оценок
Планировки 90%
2 484 оценок
Проекты 93%
2 231 оценок
С
Слава Костин04/19/2026 г.
Очень понравилось, что дают гарантию на коробку 10 лет. Строил дом 7х12 с мансардой и балконом. Через год после усадки приехали подтянуть брус и подбить наличники — всё бесплатно. Рекомендую, только внимательнее читайте договор насчёт отделки.
С
Дмитрий Лаптев04/07/2025 г.
Это мой второй опыт строительства с Брус дома, впервые они строили мне баню, а теперь и дом. И снова всё на высшем уровне: те же ответственные прорабы, те же качественные материалы и тот же уверенный результат. Редко встретишь такую компанию, которая держит марку и не подводит своих клиентов.
Отзывы из Google Карт
4.8
66 отзывов
Дополнительные услуги 88%
2 154 оценок
Комплектации 89%
1 535 оценок
Планировки 90%
2 484 оценок
Проекты 93%
2 231 оценок
С
Ждана П.01/18/2026 г.
Удивило, что при сборке использовали не только гвозди, но и деревянные нагели. Говорят, так надёжнее и естественнее для сруба.
С
Иван Блохин08/19/2025 г.
Мне импонирует ответственный подход к подбору персонала — в моем объекте были задействованы исключительно вежливые и квалифицированные специалисты с большим опытом работы именно с деревянными конструкциями.
Отзывы из 2гис
4.9
41 отзывов
Дополнительные услуги 88%
2 154 оценок
Комплектации 89%
1 535 оценок
Планировки 90%
2 484 оценок
Проекты 93%
2 231 оценок
С
Константин И.03/22/2026 г.
Обратился в компанию за домом 7х10 с котельной и санузлом на первом этаже. Составили смету, я ужаснулся — вышло дороже конкурентов на 200 тысяч. Но когда начали строить, понял почему: брус камерной сушки, никакой горбыль. В общем, не пожалел.
С
Слава02/21/2026 г.
Полутораэтажный дом 8х9 с эркером и вторым светом — мечта, а не дача. Рабочие из бригады Сергея пилили и собирали аккуратно, всё под линейку. Но при подписании акта нашли царапину на ламинате, компенсировали тысячей рублей.
С
Злата Ермолова02/13/2025 г.
Очень понравилось, что нам не навязывали самые дорогие решения, а честно подсказали, где можно сэкономить без потери качества – это дорогого стоит в современном мире.


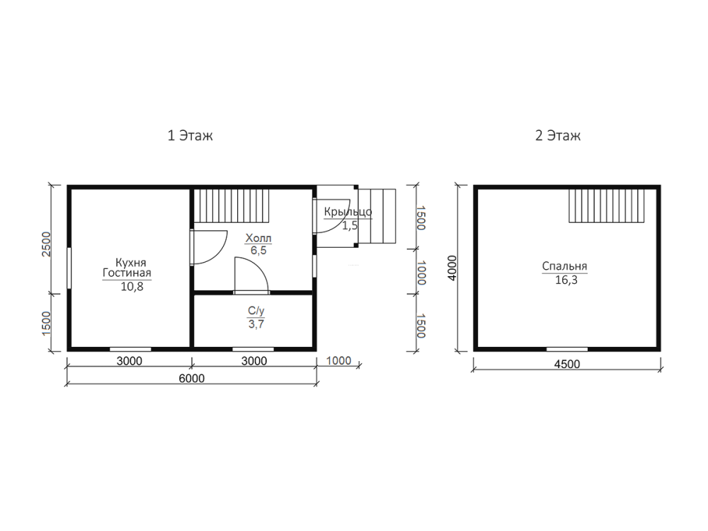
Проект №5 Дом с мансардой 6х4

брус камерной сушки
Создайте свой план для этого проекта
и отправьте его нам на расчет в один клик.
Под ключ (с отделкой) 6х4 Профилированный 140х140 мм 1161800 Заказать
Под ключ (с отделкой) 6х4 Профилированный 190х140 мм 1281800 Заказать
Под усадку (без отделки) 6х4 Cруб дома 140х140 мм 801800 Заказать
Под усадку (без отделки) 6х4 Cруб дома 190х140 мм 921800 Заказать


Комплектация

Площадь застройки: м2
Длина: 6 м
Ширина: 4 м
Общая площадь: 38.5 м2
Под ключ (с отделкой) Под усадку (без отделки)
Фундамент Свайно-винтовой или ж/б сваи (рассчитываются отдельно).
Гидроизоляция фундамента Рубероид в два слоя.
Основание (обвязка) Из обрезного бруса (100х150 мм. 150х150 мм. 150х200 мм. согласно выбранному сечению бруса). Обработка антисептиком.
Количество рядов основания 2 2
Цокольное перекрытие Обрезной брус камерной сушки 100х150/50х200 мм. с шагом 600 мм. Обработка антисептиком. Обрезной брус естественной влажности 100х150/50х200 мм. с шагом 600 мм. Обработка антисептиком.
Пол черновой Обрезная доска камерной сушки 20х100 мм. Обрезная доска естественной влажности 20х100 мм.
Внешние стены Профилированный брус камерной сушки, сечением 90х140/140х140/190х140 мм. по выбранной комплектации. Два вида профиля: 
1. С двух сторон, прямой со снятой фаской. 2. Снаружи под «блок- хаус», внутри прямой.
Высота сруба: Сруб одноэтажный- 18 венцов
Сруб с мансардой- 18 венцов
Сруб в 1,5 этажа- 18 венцов, далее каркас с внешней отделкой имитацией бруса.
Сруб в 2 этажа- 37 венцов
Профилированный брус естественной влажности, сечением 90х140/140х140/190х140 мм. по выбранной комплектации. Два вида профиля: 
1. С двух сторон, прямой со снятой фаской. 2. Снаружи под «блок- хаус», внутри прямой.
Высота сруба: Сруб одноэтажный- 18 венцов
Сруб с мансардой- 18 венцов
Сруб в 1,5 этажа- 18 венцов, далее каркас с внешней отделкой имитацией бруса.
Сруб в 2 этажа- 37 венцов
Межвенцовый утеплитель Джут (льноджутовое полотно). Джут (льноджутовое полотно).
Перегородки 1-го этажа Профилированный брус камерной сушки, сечением 90х140 мм. Профилированный брус естественной влажности, сечением 90х140 мм.
Перегородки 2-го этажа Каркасные: доска камерной сушки 40х100 мм, обшитые евровагонкой хвойных пород, камерной сушки, толщиной 12,5 мм. сорт «АВ» (дома с мансардой и в 1,5 этажа). Брусовые: профилированный брус камерной сушки, сечением 90х140 мм. (дома двухэтажные). Каркасные: доска естественной влажности 40х100 мм. (дома с мансардой и в 1,5 этажа). Брусовые: профилированный брус естественной влажности, сечением 90х140 мм. (дома двухэтажные).
Сборка сруба Берёзовый нагель. Берёзовый нагель.
Соединение углов сруба «Тёплый угол» (коренной шип). «Тёплый угол» (коренной шип).
Высота от пола до потолка Сруб одноэтажный: 2,4 м. (18 венцов) Сруб с мансардой: 1-ый этаж- 2,4 м. (18 венцов)
2-ой этаж (мансарда)- 2,3 м.
Сруб в полтора и два этажа:
1-ый этаж 2,4 м ±4 см. (18 венцов)
2-ой этаж 2,4 м ±4 см. каркасные аттиковые стены (боковые) высотой 1,5 м. в полутораэтажном доме
2,4 м ±4 см (поднят брусом на 18 венцов) в двухэтажном доме.
Сруб одноэтажный: 2,5 м. (18 венцов) Сруб с мансардой: 1-ый этаж- 2,5 м. (18 венцов)
2-ой этаж (мансарда)- 2,4 м.
Сруб в полтора и два этажа:
1-ый этаж 2,5 м ±4 см. (18 венцов)
2-ой этаж 2,5 м ±4 см. каркасные аттиковые стены (боковые) высотой 1,5 м. в полутораэтажном доме
2,5 м ±4 см (поднят брусом на 18 венцов) в двухэтажном доме.
Утепление (пол, потолок, мансарда) Минеральная вата Knauf 150 мм. Отсутствует.
Пароизоляция (пол, потолок, мансарда) Ондутис R70. Отсутствует.
Пол чистовой Шпунтованная доска камерной сушки толщиной 36 мм. сорт АВ. по рейке 20х40 мм. либо шпунтованная ДСП 16 мм. по разряженной обрешётке из обрезной доски камерной сушки 20х100 мм. Отсутствует.
Потолки Евровагонка камерной сушки толщиной 12,5 мм. сорт АВ. Отсутствует.
Окна Деревянные, двойного остекления. Отсутствуют.
Двери Входная- металлическая, утеплённая (Россия). Межкомнатные- филёнчатые. Отсутствуют.
Наличники на окна и двери Наличник деревянный, строганый, камерной сушки 70-90 мм. Отсутствует.
Шиповка оконных и дверных проёмов (ройки) Да. Отсутствует.
Лестница (при наличии второго этажа) Деревянная, одно или двухмаршевая. Перила- заводские резные, балясины- заводские точеные, устанавливаются стартовые точёные столбы. Ступени 40х200 мм. Тетива лестницы- 90х140 мм. Отсутствует.
Крыша Двускатная, ломаная или вальмовая в соответствии с проектом. Двускатная, ломаная или вальмовая в соответствии с проектом.
Стропильная система Выполнена из обрезной доски камерной сушки 40х150 мм. Шаг установки стропильных ног 600 мм. Выполнена из обрезной доски естественной влажности 40х150 мм. Шаг установки стропильных ног 600 мм.
Обрешётка Выполняется из обрезной доски камерной сушки толщиной 20-22 мм. Шаг крепления обрешетки 300 мм. Контробрешётка выполняется из бруска камерной сушки 40х50 мм. Крепится по стропильным ногам (вентиляционный зазор). Выполняется из обрезной доски естественной влажности толщиной 20-22 мм. Шаг крепления обрешетки 300 мм. Контробрешётка выполняется из бруска естественной влажности 40х50 мм. Крепится по стропильным ногам (вентиляционный зазор).
Подкровельная мембрана Ондутис А100 Ондутис А100
Кровельное покрытие (на выбор) Ондулин, Черепица Ондулин. Ондулин, Черепица Ондулин.
Фронтоны (при наличии) Каркас из обрезной доски камерной сушки 40х150 мм. Обшиваются вагонкой камерной сушки толщиной 16 мм. сорт АВ по контррейке 20х40 мм. (вентиляционный зазор). Влаго-ветрозащита Ондутис А100. Монтаж вентиляционных решёток. Каркас из обрезной доски естественной влажности 40х150 мм. Обшиваются вагонкой камерной сушки толщиной 16 мм. сорт АВ по контррейке 20х40 мм. (вентиляционный зазор). Влаго-ветрозащита Ондутис А100. Монтаж вентиляционных решёток.
Свесы крыши Ширина 400 мм. Подшиваются вагонкой камерной сушки, сорт АВ. Ширина 400 мм. Подшиваются вагонкой камерной сушки, сорт АВ.
Терраса/балкон (при наличии) Устанавливаются опорные столбы из строганного бруса камерной сушки 140х140 мм. с компенсационными болтами под усадку. Устанавливаются опорные столбы из строганного бруса естественной влажности 140х140 мм. с компенсационными болтами под усадку.
Отделка потолка террасы/балкона Евровагонка камерной сушки толщиной 12,5 мм. сорт АВ. Отсутствует.
Пол террасы/балкона Шпунтованная доска камерной сушки толщиной 36 мм. сорт АВ. Отсутствует.
Ограждение террасы/балкона Перила- строганая доска. Балясины- точеные, фигурные. Либо ограждение в скандинавском стиле. Устанавливаются ступени у входа. Отсутствует.
Допуск на геометрические параметры сруба Составляет +/- 50 мм по длине с каждой стороны. Составляет +/- 50 мм по длине с каждой стороны.
Допускается стыковка бруса, вагонки и половой доски По всему периметру стен дома (если ширина и длина дома более 6,0 метров). Вагонки и доски пола в каждой отдельной комнате. По всему периметру стен дома (если ширина и длина дома более 6,0 метров).
Допуски по брусу, доске +/- 5 мм. +/- 5 мм.
В стоимость включена Доставка комплекта материала в радиусе 500 км. от г. Пестова Новгородской области и сборка дома на вашем участке. Доставка комплекта материала в радиусе 500 км. от г. Пестова Новгородской области и сборка дома на вашем участке.
Гарантия 5 лет. 2 года.
Бытовка строительная 2,0х3,0 м. каркасно-щитовая. Стоимость 23000 руб. Остаётся на участке Заказчика. Стоимость 23000 руб. Остаётся на участке Заказчика.
Туалет 1,0х1,0 м. каркасно-щитовой. Стоимость 12000 руб. Остаётся на участке Заказчика. Стоимость 12000 руб. Остаётся на участке Заказчика.
Генератор Стоимость аренды на весь срок строительства 10000 руб. ГСМ за счёт Заказчика. Стоимость аренды на весь срок строительства 10000 руб. ГСМ за счёт Заказчика.

Постройка дома производится в нескольких вариантах: под усадку, когда сруб будет отстаиваться в течение некоторого времени и сразу под ключ.

Зимой специалисты рекомендуют строить дома из зимнего леса, летом - из сухого бруса (дерева камерной сушки).

Оптимальными для сада или дачи считают домики на винтовых сваях, у нас представлены одноэтажные и полуторатажные дома.

Если вы планируете проживать постоянно, предлагаем надежные и теплые двухэтажные и одноэтажные дома на ленточном и плитном фундаменте.

Существует несколько размеров профбруса: 190х140 мм и 140х140 мм. Дома из вертикального бруса строятся из бруса 140х190 мм.

Дополнительные услуги


Представленный проект полутораэтажного дома с 5 отлично впишется в загородный ландшафт и позволит владельцам проводить время в окружении природы, не покидая территорию жилища.

Дом выполняется из натурального профилированного бруса сечением 90х140 мм или 140х140 мм, что обеспечит не только прекрасную теплоизоляцию, но и создаст особый микроклимат гармонии и умиротворения. При строительстве стен дополнительно используется утеплитель – джутовое льнополотно.

Общая площадь данной модели 38.5 кв.м., размер – 6х4 м.. В каждом помещении предполагается установка двойных окон размером 1х1,2м и межкомнатных филенчатых дверей. Полы дома – двойные с прослойкой утеплителя (URSA/ISOVER) и гидроизолятора (ондутис R70). Конструкцию завершает двускатная крыша, выполненная из ондулина (возможен выбор цвета).

Выбрав данный дом, Вы можете осуществить заказ его строительства под ключ или усадку по приемлемым ценам в Пскове. Мы, со своей стороны, обеспечим выполнение работ на высоком профессиональном уровне с соблюдением сроков, прописанных договором.


Популярные проекты

хит продаж брус камерной сушки
Тип: с балконом, с маленькой террасой
Общая площадь: 662
1419300
от 1351800
хит продаж брус камерной сушки
Тип: с маленькой террасой
Общая площадь: 33.32
873300
от 831800
хит продаж брус камерной сушки
Тип:
Общая площадь: 582
1041300
от 991800

Заказать или задать вопрос



Заказать или задать вопрос

Заказать звонок