Дома под ключ во Пскове
Отзывы из Яндекс Карт
4.9
80 отзывов
Дополнительные услуги 88%
2 154 оценок
Комплектации 89%
1 535 оценок
Планировки 90%
2 484 оценок
Проекты 93%
2 231 оценок
С
Алла04/13/2026 г.
Решились на дом 8х9 с мансардой и панорамным остеклением для ПМЖ. Долго согласовывали планировку, менеджер терпеливо вносил правки, хотя иногда пропадал на пару дней. Дом встал на фундамент ровно, зимой тепло, но окна мы потом сами дополнительно утепляли.
С
Марк Сафонов03/21/2026 г.
Сначала думал, что строят все одинаково, но когда увидел, как они пазы в брусе промазывают и укладывают джут, понял — тут подход серьезный.
С
Эшли01/13/2026 г.
Одноэтажный дом 10х12 с верандой и террасой — наше спасение от дачной тесноты. Компания сделала очень аккуратно, даже стыки бруса почти не видны. Единственное, затянули с установкой окон, пришлось неделю жить с пленкой.
С
Ярик Белкин02/11/2025 г.
С самого начала сотрудничества с компанией Брус дома я ощутил серьезный и профессиональный подход, ведь мне подробно объяснили все этапы строительства каркасного дома, помогли выбрать оптимальный проект и в итоге построили именно тот дом, о котором я всегда мечтал.
Отзывы из Google Карт
4.8
48 отзывов
Дополнительные услуги 88%
2 154 оценок
Комплектации 89%
1 535 оценок
Планировки 90%
2 484 оценок
Проекты 93%
2 231 оценок
С
Денис Астафьев05/04/2026 г.
Есть у них минус — любят экономить на крепеже. В моем доме 6х10 с террасой и котельной часть саморезов была короткая, через месяц пол на веранде заскрипел. Приехали перебрали, но осадок остался.
С
Марина Павлова04/22/2025 г.
Огромное спасибо прорабу Михаилу и его бригаде за аккуратность, внимательность к мелочам и добросовестное отношение к работе — наш новый дом построен на совесть и, я уверена, простоит долгие десятилетия.
Отзывы из 2гис
4.9
41 отзывов
Дополнительные услуги 88%
2 154 оценок
Комплектации 89%
1 535 оценок
Планировки 90%
2 484 оценок
Проекты 93%
2 231 оценок
С
Рита Фомичёва02/21/2026 г.
Главное, что дом 10х15 с гаражом и котельной получился тёплым даже в -25. Утепление каркаса сделано качественно, продуваний нет. Но вот смету занизили изначально, чтобы заманить — в процессе выяснилось, что фундамент нужен дороже из-за грунта. В итоге пер
С
Радомир Лапин06/11/2025 г.
Хочу выразить огромную благодарность всей команде за профессионализм и ответственность. Строительство моего дома из бруса велось строго по графику, без каких-либо проволочек, а любые вопросы решались мгновенно. Результат превзошел все ожидания — дом теплый, уютный и невероятно красивый.


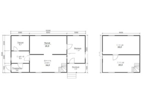
Проект №10 Баня 12х6

брус камерной сушки
Под ключ (с отделкой) 12х6 Профилированный 140х140 мм 2561800 Заказать
Под ключ (с отделкой) 12х6 Профилированный 190х140 мм 2951800 Заказать
Под усадку (без отделки) 12х6 Cруб дома 140х140 мм 1871800 Заказать
Под усадку (без отделки) 12х6 Cруб дома 190х140 мм 2231800 Заказать


Комплектация

Площадь застройки: 72 м2
Длина: 12 м
Ширина: 6 м
Общая площадь: 101 м2
Под ключ (с отделкой) Под усадку (без отделки)
Фундамент Свайно-винтовой или ж/б сваи (рассчитываются отдельно).
Гидроизоляция фундамента Рубероид в два слоя.
Основание (обвязка) Из обрезного бруса (100х150 мм. 150х150 мм. 150х200 мм. согласно выбранному сечению бруса). Обработка антисептиком.
Количество рядов основания 2 2
Цокольное перекрытие Обрезной брус камерной сушки 100х150/50х200 мм. с шагом 600 мм. Обработка антисептиком. Обрезной брус естественной влажности 100х150/50х200 мм. с шагом 600 мм. Обработка антисептиком.
Пол черновой Обрезная доска камерной сушки 20х100 мм. Обрезная доска естественной влажности 20х100 мм.
Внешние стены Профилированный брус камерной сушки, сечением 90х140/140х140/190х140 мм. по выбранной комплектации. Два вида профиля: 
1. С двух сторон, прямой со снятой фаской. 2. Снаружи под «блок- хаус», внутри прямой.
Высота сруба: Сруб одноэтажный- 17 венцов
Сруб с мансардой- 17 венцов
Сруб в 1,5 этажа- 17 венцов, далее каркас с внешней отделкой имитацией бруса.
Сруб в 2 этажа- 35 венцов
Профилированный брус естественной влажности, сечением 90х140/140х140/190х140 мм. по выбранной комплектации. Два вида профиля: 
1. С двух сторон, прямой со снятой фаской. 2. Снаружи под «блок- хаус», внутри прямой.
Высота сруба: Сруб одноэтажный- 17 венцов
Сруб с мансардой- 17 венцов
Сруб в 1,5 этажа- 17 венцов, далее каркас с внешней отделкой имитацией бруса.
Сруб в 2 этажа- 35 венцов
Межвенцовый утеплитель Джут (льноджутовое полотно). Джут (льноджутовое полотно).
Перегородки 1-го этажа Профилированный брус камерной сушки, сечением 90х140 мм. Профилированный брус естественной влажности, сечением 90х140 мм.
Перегородки 2-го этажа Каркасные: доска камерной сушки 40х100 мм, обшитые евровагонкой хвойных пород, камерной сушки, толщиной 12,5 мм. сорт «АВ» (бани с мансардой и в 1,5 этажа). Брусовые: профилированный брус камерной сушки, сечением 90х140 мм. (бани двухэтажные). Каркасные: доска естественной влажности 40х100 мм. (бани с мансардой и в 1,5 этажа). Брусовые: профилированный брус естественной влажности, сечением 90х140 мм. (бани двухэтажные).
Сборка сруба Берёзовый нагель. Берёзовый нагель.
Соединение углов сруба «Тёплый угол» (коренной шип). «Тёплый угол» (коренной шип).
Высота от пола до потолка Сруб одноэтажный: 2,25 м. (17 венцов) Сруб с мансардой: 1-ый этаж- 2,25 м. (17 венцов)
2-ой этаж (мансарда)- 2,3 м.
Сруб в полтора и два этажа:
1-ый этаж 2,25 м. (17 венцов)
2-ой этаж 2,3 м. каркасные аттиковые стены (боковые) высотой 1,5 м. в полутораэтажной бане.
2,25 м. (поднят брусом на 17 венцов) в двухэтажной бане.
Сруб одноэтажный: 2,30 м. (17 венцов) Сруб с мансардой: 1-ый этаж- 2,3 м. (17 венцов)
2-ой этаж (мансарда)- 2,3 м.
Сруб в полтора и два этажа:
1-ый этаж 2,3 м. (17 венцов)
2-ой этаж 2,3 м. каркасные аттиковые стены (боковые) высотой 1,5 м. в полутораэтажной бане.
2,3 м. (поднят брусом на 17 венцов) в двухэтажной бане.
Утепление (пол, потолок, мансарда) Минеральная вата Knauf 150 мм. Отсутствует.
Пароизоляция (пол, потолок, мансарда) Ондутис R70. Отсутствует.
Пол чистовой Шпунтованная доска камерной сушки толщиной 36 мм. сорт АВ. по рейке 20х40 мм. либо шпунтованная ДСП 16 мм. по разряженной обрешётке из обрезной доски камерной сушки 20х100 мм. Отсутствует.
Потолки Евровагонка камерной сушки толщиной 12,5 мм. сорт АВ. Отсутствует.
Окна Деревянные, двойного остекления. Отсутствуют.
Двери Входная- металлическая, утеплённая (Россия). Межкомнатные- филёнчатые. В парную- клиновая (банная). Отсутствуют.
Наличники на окна и двери Наличник деревянный, строганый, камерной сушки 70-90 мм. Отсутствует.
Шиповка оконных и дверных проёмов (ройки) Да. Отсутствует.
Лестница (при наличии второго этажа) Деревянная, одно или двухмаршевая. Перила- заводские резные, балясины- заводские точеные, устанавливаются стартовые точёные столбы. Ступени 40х200 мм. Тетива лестницы- 90х140 мм. Отсутствует.
Крыша Двускатная, ломаная или вальмовая в соответствии с проектом. Двускатная, ломаная или вальмовая в соответствии с проектом.
Стропильная система Выполнена из обрезной доски камерной сушки 40х150 мм. Шаг установки стропильных ног 600 мм. Выполнена из обрезной доски естественной влажности 40х150 мм. Шаг установки стропильных ног 600 мм.
Обрешётка Выполняется из обрезной доски камерной сушки толщиной 20-22 мм. Шаг крепления обрешетки 300 мм. Контробрешётка выполняется из бруска камерной сушки 40х50 мм. Крепится по стропильным ногам (вентиляционный зазор). Выполняется из обрезной доски естественной влажности толщиной 20-22 мм. Шаг крепления обрешетки 300 мм. Контробрешётка выполняется из бруска естественной влажности 40х50 мм. Крепится по стропильным ногам (вентиляционный зазор).
Подкровельная мембрана Ондутис А100 Ондутис А100
Кровельное покрытие (на выбор) Ондулин, Черепица Ондулин. Ондулин, Черепица Ондулин.
Фронтоны (при наличии) Каркас из обрезной доски камерной сушки 40х150 мм. Обшиваются вагонкой камерной сушки толщиной 16 мм. сорт АВ по контррейке 20х40 мм. (вентиляционный зазор). Влаго-ветрозащита Ондутис А100. Монтаж вентиляционных решёток. Каркас из обрезной доски естественной влажности 40х150 мм. Обшиваются вагонкой камерной сушки толщиной 16 мм. сорт АВ по контррейке 20х40 мм. (вентиляционный зазор). Влаго-ветрозащита Ондутис А100. Монтаж вентиляционных решёток.
Свесы крыши Ширина 400 мм. Подшиваются вагонкой камерной сушки, сорт АВ. Ширина 400 мм. Подшиваются вагонкой камерной сушки, сорт АВ.
Терраса/балкон (при наличии) Устанавливаются опорные столбы из строганного бруса камерной сушки 140х140 мм. с компенсационными болтами под усадку. Устанавливаются опорные столбы из строганного бруса естественной влажности 140х140 мм. с компенсационными болтами под усадку.
Отделка потолка террасы/балкона Евровагонка камерной сушки толщиной 12,5 мм. сорт АВ. Отсутствует.
Пол террасы/балкона Шпунтованная доска камерной сушки толщиной 36 мм. сорт АВ. Отсутствует.
Ограждение террасы/балкона Перила- строганая доска. Балясины- точеные, фигурные. Либо ограждение в скандинавском стиле. Устанавливаются ступени у входа. Отсутствует.
Отделка парной Отделка осиновой вагонкой камерной сушки, сорт АВ по фольге, через контррейку 20х40 мм. (вентиляционный зазор). Установка пологов из осины. Отсутствует.
Допуск на геометрические параметры сруба Составляет +/- 50 мм по длине с каждой стороны. Составляет +/- 50 мм по длине с каждой стороны.
Допускается стыковка бруса, вагонки и половой доски По всему периметру стен бани (если ширина и длина бани более 6,0 метров). Вагонки и доски пола в каждой отдельной комнате. По всему периметру стен бани (если ширина и длина бани более 6,0 метров).
Допуски по брусу, доске +/- 5 мм. +/- 5 мм.
В стоимость включена Доставка комплекта материала в радиусе 500 км. от г. Пестова Новгородской области и сборка дома на вашем участке. Доставка комплекта материала в радиусе 500 км. от г. Пестова Новгородской области и сборка дома на вашем участке.
Гарантия 5 лет. 2 года.
Печь По запросу Не предусмотрена.
Бытовка строительная 2,0х3,0 м. каркасно-щитовая. Стоимость 23000 руб. Остаётся на участке Заказчика. Стоимость 23000 руб. Остаётся на участке Заказчика.
Туалет 1,0х1,0 м. каркасно-щитовой. Стоимость 12000 руб. Остаётся на участке Заказчика. Стоимость 12000 руб. Остаётся на участке Заказчика.
Генератор Стоимость аренды на весь срок строительства 10000 руб. ГСМ за счёт Заказчика. Стоимость аренды на весь срок строительства 10000 руб. ГСМ за счёт Заказчика.

Постройка бани выполняется в 2-х вариантах: под усадку, когда сруб отстаивается определенное время и под ключ.

В зимнее время лучше строить из зимнего леса, в летний сезон - из сухого бруса (дерева камерной сушки).

Оптимальными для сада или дачи считаются экономные баньки на винтовых сваях, в нашем онлайн-каталоге присутствуют одноэтажные и полуторатажные бани.

Мы можем предложить несколько вариантов размеров профилированного бруса: 140х140 мм и 190х140 мм. Сборные бани из вертикального бруса возводятся с применением бруса 140х190 мм.

Дополнительные услуги


Баня с верандой размерами 12х6 м. обеспечит приятное времяпрепровождение дружеской компании. Баня по проекту 10 от компании «Дача из бруса» отличается высоким комфортом, практичностью и характеризуется следующими конструктивными особенностями:

  • общая площадь – 101 кв.м.;
  • каркас, обвязка, перекрытие, обрешетка выполнены из деревянных брусьев различного сечения, что обеспечивает сооружению высокую экологическую чистоту;
  • высокая звуко- и теплоизоляция помещений, стен и перекрытия (применение в качестве изоляционного материала минваты URSA/ISOVER в 50 мм в сочетании с пленочной паро- и гидроизоляцией;
  • внутренняя отделка поверхностей – вагонка;
  • окна – с малой теплопроводностью, зимнего типа;
  • двери – филенчатой конструкции размером 0,8 х 2,0 м;
  • крыша – двускатная из ондулина любого цвета, в зависимости от предпочтений клиента.

Проектом бани предусмотрено наличие всех необходимых для комфортного отдыха и принятия процедур зон.

Компания «Дача из бруса» произведет проектировку и строительство бани в Пскове с учетом ваших требований и предпочтений. Особенностью предоставления услуг компании является скорость выполнения заказов при доступных ценах.


Заказать или задать вопрос



Заказать или задать вопрос

Заказать звонок